Ursellen - Schützenhaus wird Lehrbienenstand

Der Bienenzüchterverein Konolfingen kann mit dem bewilligten Baugesuch den Kauf des Schützenhauses Ursellen abschliessen. Somit wird auch der Umbau in einen zeitgemässen, den heutigen Anforderungen entsprechenden Lehrbienenstand geplant und umgesetzt.

Willi Blaser im Auftrag des Bienenzüchtervereins Konolfingen. info@bern-ost.ch

Aus verschiedenen Gründen, Sanierung des Erdreichs und Nachwuchsmangel, müssen die Schlössli-Schützen Ursellen-Niederhünigen ihren Verein per Ende 2020 auflösen. So wird auch das vereinseigene Schützenhaus in Ursellen nicht mehr benötigt.

 

Fritz Bigler, Mitglied der Schlösslischützen und Präsident des Bienenzüchtervereins Konolfingen (BZVK) machte zusammen mit dem Vizepräsidenten des BZVK Kurt Krähenbühl und Zuchtberater Philipp Roth aus der Not eine Tugend. "Da der heutige Lehrbienenstand in Hötschigen nicht mehr ganz den heutigen Anforderungen für Grundkurse und Weiterbildungen entspricht, trugen wir die Idee, das Schützenhaus zu erwerben, in den Bienenzüchterverein". Bei einem gemeinsamen Treffen der beiden Vereinsvorstände wurde eine Kaufabsichtserklärung unterschrieben. Darin wurde als wichtige Bedingung festgelegt, dass zum Kauf des Schützenhauses ein bewilligtes Baugesuch vorhanden sein muss.

 

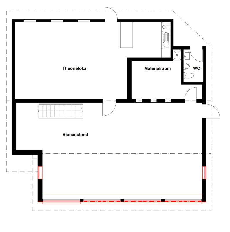
Baugesuch bewilligt, dem Umbau steht fast nichts mehr im Wege

Fritz Bigler informierte vor dem Einreichen des Gesuches die Anlieger. Mit dem von der Hauptversammlung bewilligten Vorgehen wurde das Baugesuch eingereicht. "Da keine Einsprachen eingingen, können wir nun den Kauf per Ende 2020 tätigen und den Umbau definitiv in Angriff nehmen", freuen sich die Initianten Fritz Bigler, Kurt Krähenbühl und Philipp Roth. Das weitere Vorgehen ist klar: "Der Umbau zum Lehrbienenstand für rund 20 bis 30 Bienenvölker soll im Winter 2020/2021 erfolgen. Im Frühling 2021 wollen wir dann auch den ersten Grundkurs im Lehrbienenstand Ursellen durchführen", erklärt Fritz Bigler.


Biodiversität, Zucht und fachgerechte Ausbildung fördern

Damit der Kauf und Umbau zeitgerecht abgewickelt werden kann, ist der BZVK auf finanzielle Unterstützung angewiesen. Neben Sponsoren ist der BZVK auch auf Spenden aus der Bevölkerung angewiesen. "Jeder Franken zählt und hilft uns, die Kosten von rund 10'000 Franken für Kauf und Umbau, sowie rund 25'000 Franken für die gesamte Einrichtung zu finanzieren", erklärt Fritz Bigler.

 

[i] Einzahlungen können auf nachfolgendes Konto gemacht werden. Der Bienenzüchterverein Konolfingen dankt für die wertvolle Unterstützung. Bank SLM, zu Gunsten Bienenzüchterverein Konolfingen IBAN CH06 0636 3690 1564 1190 0


Autor:in
Willi Blaser im Auftrag des Bienenzüchtervereins Konolfingen. info@bern-ost.ch
Fehler gefunden?
Statistik

Erstellt: 03.03.2020
Geändert: 03.03.2020
Klicks heute:
Klicks total: