Schulhaus am Bach Wichtrach: Neuer Parkplatz gegen das Wildparkieren

Die Umgebung des Schulhauses am Bach in Wichtrach soll umgestaltet weden. Unter anderem soll es mehr Parkiermöglichkeiten geben, um dem Wildparkieren bei Grossanlässen entgegen zu wirken. Freuen dürfen sich auch die Kinder: Für den Spielplatz sind neue Geräte geplant.

Isabelle Berger, info@bern-ost.ch

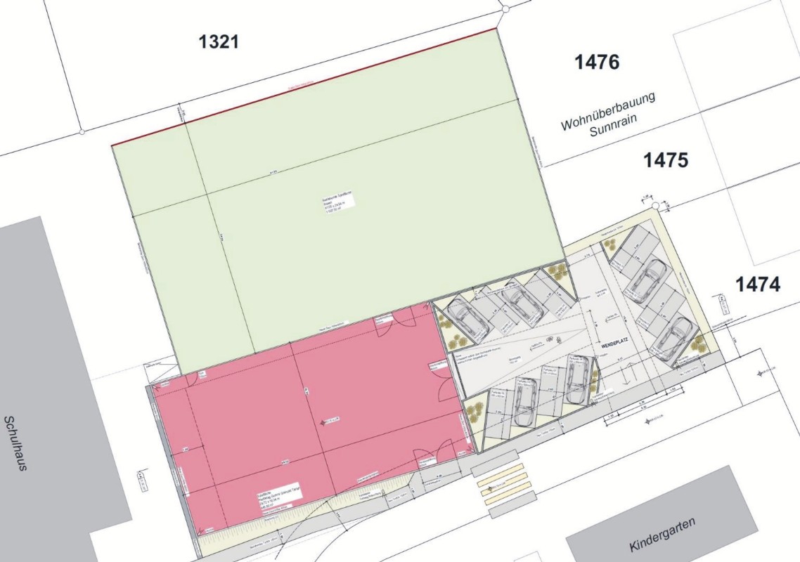
Ein Park- und Wendeplatz, eine Allwetterspielfläche, die Neugestaltung des bestehenden Spielplatzes und ein neuer Gehweg vom Schulhaus ins Oberdorf ­– das beinhaltet der Kredit von 635 000 Franken, über den die Wichtracher Stimmbevölkerung am 30. November entscheiden soll. Damit könne der Aussenraum optimal genutzt und ein echter Merhwert für die Bevölkerung geschaffen werden, schreibt der Gemeinderat in der Abstimmungsbotschaft. "Wir wollen den Standort stärken. Es soll eine Begegnungszone für alle Generationen geben", sagt Gemeindepräsident Bruno Riem (FDP) auf Anfrage von BERN-OST. Natürliche diene das Vorhaben auch der Schule.

 

Das Vorhaben gliedert sich in die Teilprojekte „Hart- und Park-/Wendeplatz“ und „Spielplatz“. Bei ersterem ist geplant, auf der Fläche, auf der bis vor 2015 das sogenannte Schenkhaus stand, einen Hartplatz sowie einen Parkplatz mit integrierter Wendefläche zu bauen. Der Hartplatz soll einerseits der Schule als Spielfläche dienen. Andererseits kann er aber auch als Erweiterung des angrenzend geplanten Parkplatzes genutzt werden. Damit könne „während Grossanlässen eine wirkungsvolle Alternative zum Wildparkieren in den angrenzenden Quartieren geschaffen werden“, so der Gemeinderat. Gemäss Riem sind beim Musiklokal und dem Tennisplatz Parkplätze weggefallen. Darum sei bei grösseren Anlässen wild parkiert worden, zum Beispiel auf den Parkplätzen des Restaurants Löwen, aber auch bei Privaten.

 

Direkter Gehweg vom Oberdorf zur Schule

Zum Teilprojekt „Hart- und Park-/Wendeplatz“ gehört auch der direkte Anschluss eines Gehwegs an den bestehenden Fussweg, welcher das Schulhausareal via die neue Überbauung Sunnrain mit dem Oberdorf verbindet. Die neue 65 Meter lange Fusswegverbindung soll entlang des Hart- und Park-/Wendeplatzes auf den grossen Pausenplatz des Schulhauses am Bach führen. „Das bis anhin fehlende Teilstück ermöglicht Fussgänger:innen also den direkten Zugang aus dem Oberdorf bis zum Schulhausweg, ohne vorher eine Strasse queren zu müssen“, heisst es in der Botschaft.

 

Im Rahmen des Teilprojekts Spielplatz soll der bestehende öffentliche Spielplatz beim Schulhaus am Bach neu gestaltet werden. Danach soll der Spielplatz über eine Dreifachschaukel, einen Tischtennis-Tisch, einen Doppelreck, Sitzgelegenheiten, einen Sandkasten, eine Slackline und eine Kletterkombination verfügen. Letztere beinhaltet neben einem Spielturm eine Rutschbahn und eine Kletterwand. Diese drei Elemente sind mit Klettertrapezen, Balancierseilen, Seilbrücken, Balanciertauen, Wackelbalken und schwebenden Hölzern miteinander verbunden. 

 

Baugesuch für ersten Teil läuft bereits

Der Gemeinderat hat für die Aussenraumgestaltung im letzten Herbst bereits einen in seiner eigenen Kompetenz liegenden Planungskredit von 25 000 Franken und diesen Frühling das nun vorliegende Nutzungskonzept genehmigt. Um mit dem Fussweg gleichzeitig mit der Erschliessungsstrasse der Sunnrain-Überbauung fertigstellen zu können, hat der Gemeinderat das Baugesuch für das Teilprojekt „Hart- und Park-/Wendeplatz“ bereits eingereicht. Aktuell läuft das Verfahren noch. Die Bevölkerung wird an der Gemeindeversammlung über den aktuellen Verfahrensstand informiert.

 

Für den Spielplatz stehen das Baubewilligungsverfahren und die damit verbundene Kreditgenehmigung noch an. Bis dahin gibt es auch noch keine Detailplanung und folglich auch keine grafische Darstellung, wie der Spielplatz dereinst genau aussehen soll.


Autor:in
Isabelle Berger, info@bern-ost.ch
Fehler gefunden?
Statistik

Erstellt: 16.11.2022
Geändert: 16.11.2022
Klicks heute:
Klicks total: