Landiswil - Ja zur Ortsplanung und zum Kiesabbau

35 anwesende Stimmberechtigte haben an der Landiswiler Einwohnergemeindeversammlung die neue Ortsplanung angenommen. Mit 34 Ja und einer Gegenstimme wurde die Überbauungsordnung Kiesgrube Kratzmatt angenommen. Der Souverän folgte damit ganz dem Antrag des Gemeinderates.

Martin Christen, martin.christen@bern-ost.ch
Gemeindepräsident Samuel Wittwer konnte in der Mehrzweckhalle 35 Stimmberechtigte begrüssen. Zu den Beschlüssen schreiben die Gemeindebehörden: "Neu besteht auch für die Gemeinde Landiswil eine zukunftsgerichtete Ortsplanung. Somit können im Ortskern von Landiswil und Obergoldbach Neu- oder Umbauten einfacher realisiert werden."

Es konnten einige Parzellen als Bauland eingezont werden – ohne dass gleich ein Bauzwang entsteht. Ziel des Gemeinderats war es, die Abwanderung zu stoppen, die einfachere Umnutzung von bestehenden Gebäuden zu ermöglichen."

Landiswil war eine der letzten Gemeinden im Kanton ohne Ortsplanung.

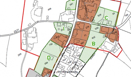
Auch die Überbauungsordnung Kiesgrube Kratzmatt gab an der Gemeindeversammlung nicht zu grösseren Diskussionen Anlass. Der Kiesabbau kann nun von 2013 bis 2038 erfolgen unter mehreren Auflagen betreffend Umweltschutz, Gewässerschutz und Wiederaufforstung.

Die Rodung wird  in der 1. Etappe eine deutlich sichtbare Veränderung der Waldstruktur bringen. Die Kiesaufarbeitung soll gemäss der Grubenbetreiberin, der Firma Blaser AG, vor Ort stattfinden. Die Gemeinde erhält einen „Kiesbatzen“ von  Fr. 1.20.- pro Kubikmeter abbaubarem Material. Die Abgeltung an die andern Grundeigentümer wurde unter den Parteien direkt geregelt.

Autor:in
Martin Christen, martin.christen@bern-ost.ch
Fehler gefunden?
Statistik

Erstellt: 31.01.2013
Geändert: 31.01.2013
Klicks heute:
Klicks total: