Zu vermieten: 1800m² Gewerberäumlichkeiten an zentraler Lage in Worb

Biete

  • Miete
  • Hell
  • Parkplatz aussen
  • Sonnig
  • Zentral

Entdecken Sie diese vielseitige Gewerbeimmobilie an der Güterstrasse 10 in Worb, die sich ideal für industrielle und gewerbliche Nutzungen eignet. Das Gebäude besticht durch seine funktionale Architektur, welche verschiedenste Nutzungsmöglichkeiten bietet.

 

Raumangebot (Nettoflächen):

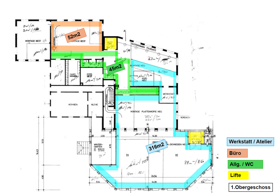
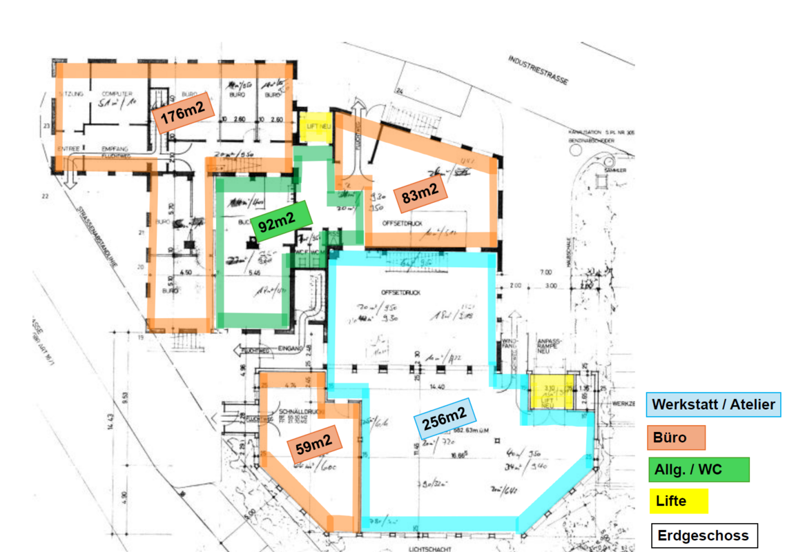
  • Erdgeschoss

    316m2 Büro

    256m2 Werkstatt/Atelier

 

  • 1. Obergeschoss

    52m2 Büro

    316m2 Werkstatt/Atelier

 

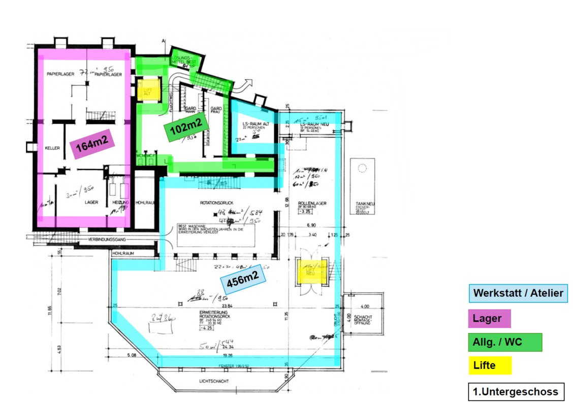
  • 1. Untergeschoss

    456m2 Werkstatt/Atelier

    164m2 Lager

 

Infrastruktur:

  • Waren-Anlieferungsrampe
  • Waren- und Personenlift
  • Schacht / Montageöffnung
  • WC-Anlagen
  • Garderoben
  • Pausenraum
  • 20 Parkplätze

Erstklassige Lage: Die Immobilie profitiert von einer ausgezeichneten Verkehrsanbindung. Die Autobahnauffahrt Muri/Gümligen ist in 9 Fahrminuten erreichbar und zum Bahnhof Worb Dorf sind es nur 3 Gehminuten. Für die täglichen Bedürfnisse sorgt das nahegelegene Coop Bären-Zentrum in 4 Gehminuten Entfernung. Die ruhige Lage garantiert eine störungsfreie Arbeitsatmosphäre, während die sonnige Ausrichtung für angenehme Lichtverhältnisse sorgt.

 

Interessiert? Zögern Sie nicht, uns zu kontaktieren und mehr über Ihren möglichen neuen Geschäftsstandort in Worb zu erfahren. Wir freuen uns auf Ihre Anfrage!

Details


Anzahl Zimmer / Quadratmeter
1800m2

Verfügbarkeit
ab sofort

Standort

Güterstrasse 10
3076 Worb

Kontakt

Kuhn Immobilien Inhaber Jürg Messerli
Güterstrasse 2
3076 Worb
031 838 48 48
E-Mail

Nachricht senden
Statistik

Erstellt: 04.09.2025
Geändert: 15.12.2025
Klicks heute:
Klicks total: